DEUX USAGES

disponible
1 995 000
Paris 16 - Rue de la Pompe
Appartement 7 pièces
surface : 192 m2 pièces : 7 chambre : 3 étage : 0 * honoraires à la
charge du vendeur

À vendre appartement 7 pièces rue de la Pompe – Paris 16

Situé rue de la Pompe, au sein d’un très bel immeuble en pierre de taille de 1896, sécurisé et avec gardien, cet appartement de 185,68 m² loi Carrez (192,98 m² au sol) se déploie sur deux niveaux et offre une qualité de vie rare, au calme absolu, uniquement tourné vers cour.

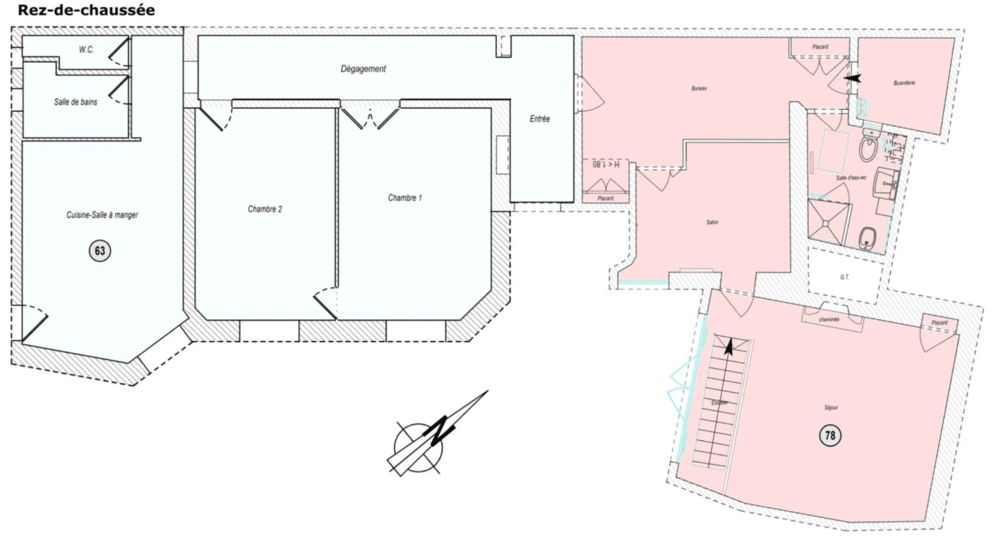
Le rez-de-chaussée réunit une entrée, deux salons aux volumes généreux (HSP 3,16 m), un bureau, une cuisine salle à manger, deux chambres, une salle d’eau avec WC, une salle de bains, une buanderie, ainsi qu’un WC indépendant.
Les éléments d’époque sont parfaitement conservés : parquet, moulures, cheminées, distribution noble.

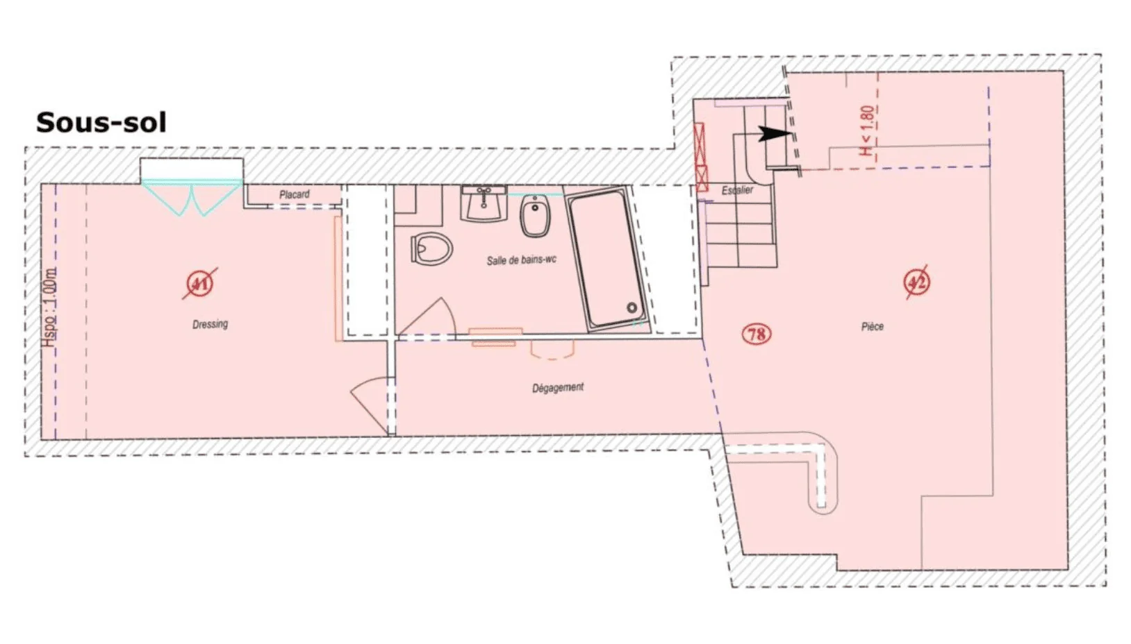
En sous-sol aménagé, accessible directement depuis l’appartement : une belle pièce polyvalente, un dressing, une salle de bains avec WC et un dégagement.
Cet espace offre de multiples possibilités d’utilisation : salle de musique, home cinéma, salle de jeux, studio indépendant, ou encore espace professionnel grâce à la possibilité d’exercice de professions libérales.

La configuration permet également de dissocier deux espaces distincts :
• un espace de vie principal,
• et un espace professionnel ou d’accueil.

Une cave en accès direct ainsi qu’une seconde cave via les parties communes complètent l’ensemble.
Deux emplacements de stationnement à proximité sont possibles en sus.

Proposé par Quality Street Immobilier, spécialiste de l’immobilier de caractère à Paris et en Normandie, en partenariat avec l’agence La Maison – 13, place du Maréchal Foch, 14130 Pont-l’ÉvêqueBenoit WACHBAR ayant le statut d’agent commercial « EI » 479 622 623 – 2024AC00148

Les informations sur les risques auxquels ce bien est exposé sont disponibles sur le site Géorisques.

Au sein du 16ᵉ arrondissement, avenue Foch, ce 3 pièces bénéficie d’un bel extérieur.

 

PRÉSENTATION DES PLANS

PRÉSENTATION DE LA VISITE 3D

Récapitulatif par pièces

Niveau Intitulé Surface Exposition Vue
0 Entrée - dégagements 16.74
0 Chambre 1 17.7 Ouest Cour
0 Chambre 2 16.43 Ouest Cour
0 Cuisine 21.67 Sud / Ouest Cour
0 Salle de bains 3.91
0 wc 1.74
0 Bureau 15.6
0 Salon 11.01 Ouest Cour
0 Séjour 25.63 Ouest Cour
0 Buanderie 4.46
0 Salle d'eau - wc 6.07
-1 Pièce 22.78
-1 Dégagement 4.63
-1 Salle de bains - wc 5.57
-1 Dressing 11.74
-1 Cave accès direct 9

Les caractérisitiques du bien

Année de construction : 1896
Nombre de pièces : 7
Nombre de chambres : 3
Surface : 192 m2
Hauteur sous plafond : 3,15
Nombre de niveaux : 2
Cuisine : Indépendante aménagée et équipée
Salle de bain : 2
Salle d'eau : 1
WC : 3
Sous-sol : Oui
Cave : Oui
Type de chauffage : Individuel
Mode de chauffage : Gaz
Mécanisme : Radiateur
Eau chaude : Ballon électrique et Chaudière
Assainissement : Tout à L’égout

Les caractérisitiques de la copropriété

Année de construction : 1896
Ascenceur : 1
Gardien : 1
Nombre d'étages : 6
Digicode : 1
Interphone : 1
Charges annuelles : 4968 €
Nombre de lots : 71
Quote part : 451/10000

Performances énergétiques

Diagnostic de performance énergétique du logement situé rue de la Pompe à Paris 16, classé E, avec une consommation de 325 kWh/m²/an et des émissions de 67 kg CO₂/m²/an.

ENVIRONNEMENT & ATMOSPHÈRE

Découvrir le quartier Rue de la Pompe – Paris 16

Située sur les hauteurs de Passy, la rue de la Pompe incarne l’élégance typique du 16ᵉ arrondissement. Dans ce quartier résidentiel recherché, l’architecture haussmannienne se mêle aux immeubles en pierre de taille de la fin du XIXᵉ siècle, témoignant d’une histoire urbaine façonnée par les familles bourgeoises et les grandes ambassades qui ont marqué le secteur. Les rues y sont calmes, arborées, et l’atmosphère y demeure préservée, presque hors du temps.

Le quotidien se vit avec simplicité. Les commerces de proximité rythment la vie du quartier : boulangeries, épiceries fines, bonnes tables discrètes, librairies familiales, marchés traditionnels. À quelques minutes, le Trocadéro et les jardins du Ranelagh invitent à la promenade, tandis que les quais de Seine offrent une respiration agréable entre deux rendez-vous.
Le quartier est idéalement desservi : métro Rue de la Pompe, bus et accès rapide au RER C.

L’adresse séduit aussi par sa proximité avec plusieurs établissements scolaires prisés et par une ambiance paisible, loin du rythme pressé des quartiers plus centraux. On y croise des familles, des professions libérales, mais aussi des passionnés d’art et d’architecture, attirés par la douceur de vivre et la cohérence architecturale du secteur.

Sur le plan immobilier, la rue de la Pompe est considérée comme une valeur sûre du marché parisien. Les appartements s’y distinguent par leurs volumes généreux, leurs éléments d’époque – parquet, moulures, cheminées – et leurs distributions fonctionnelles. Ce secteur combine prestige, stabilité et confort de vie, tout en offrant des possibilités d’aménagement pour ceux qui souhaitent vivre et travailler au même endroit.

Pour prolonger la découverte du secteur, vous pouvez visiter le Musée Marmottan Monet, situé à seulement quelques minutes.

Transports

Loisirs et sorties

Commerces

Services publics et éducation

Soyez les premiers au courant de nos nouveautés