LOFT CATHÉDRALE

retrospective

Paris 18 - Marx Dormoy
Loft 2 pièces
surface : 60 m2 pièces : 2 chambre : 1 étage : 3

LOFT 2 PIÈCES MARCHÉ DE L’OLIVE – PARIS 18 MARX DORMOY

Au cœur du marché de l’Olive, à deux pas du métro Marx Dormoy, ce loft de deux pièces se situe au dernier étage d’un petit immeuble ancien du 18ᵉ arrondissement.
Tourné sur cour, il offre une belle luminosité et un calme préservé, sublimés par une hauteur sous plafond de 3,55 mètres qui renforce l’esprit cathédrale du lieu.

Le premier niveau s’articule autour d’un séjour cathédrale avec cuisine ouverte et salle de bains avec WC.
Une mezzanine accueille un espace bureau et une chambre mansardée, créant un ensemble fonctionnel et harmonieux.

Rénové avec soin, ce loft sous les toits conjugue authenticité et confort, dans un environnement vivant et recherché du 18ᵉ arrondissement, à proximité immédiate du marché de l’Olive et des commerces de Marx Dormoy.

Quality Street Immobilier, spécialiste de l’immobilier de caractère à Paris et en Normandie.

 cette maison de ville contemporaine sur deux étages

Dans un secteur voisin du 18ᵉ arrondissement, cette maison de ville contemporaine sur deux étages, bénéficie d’un jardin en rez-de-chaussée et d’une remarquable terrasse sur le toit.

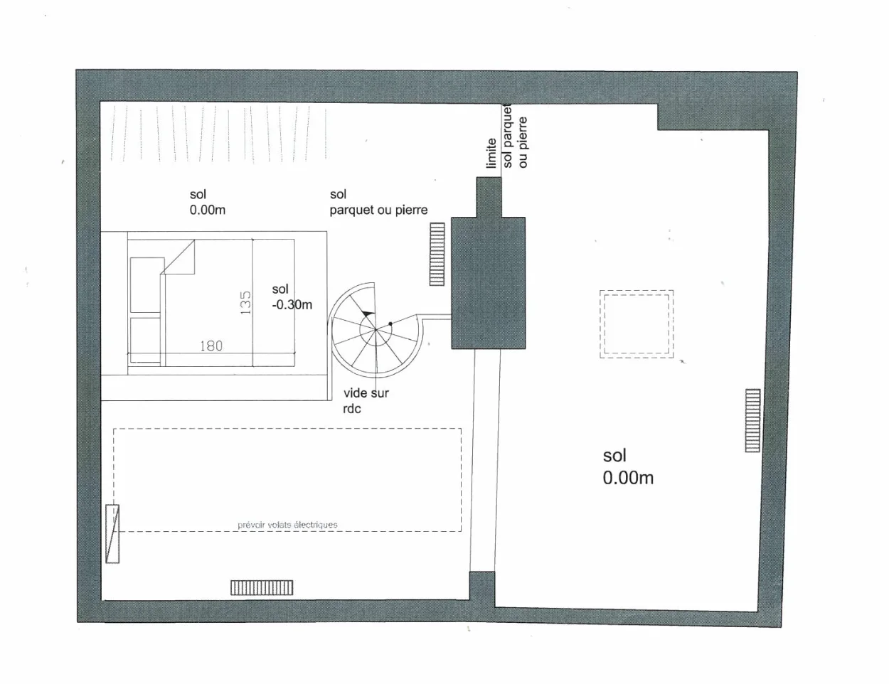
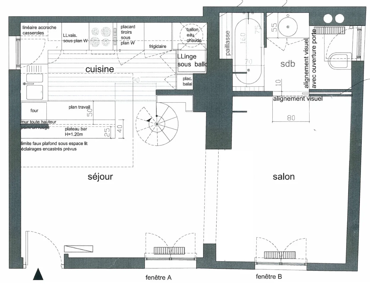
PRÉSENTATION DES PLANS

Récapitulatif par pièces

Niveau Intitulé Surface Exposition Vue
3 Salon 24 Nord Cour
3 Cuisine 7.45 Est Cour
3 Salle de bains 4.28 Ouest Cour
4 Mezzanine 13.65 Nord Ciel
4 Chambre 10.6 Nord Ciel

Les caractérisitiques du bien

Nombre de pièces : 2
Nombre de chambres : 1
Surface : 60 m2
Hauteur sous plafond : 3,55
Etage : 3
Nombre de niveaux : 2
Cuisine : Ouverte aménagée et équipée
Salle de bain : 1
WC : 1
Cave : Oui
Type de chauffage : Individuel
Mode de chauffage : Électrique
Mécanisme : Convecteur
Eau chaude : Ballon électrique

Les caractérisitiques de la copropriété

Nombre d'étages : 3
Local poussette / vélo : 1
Digicode : 1
Charges annuelles : 1855 €
Nombre de lots : 151
Nombre de lots en habitation : 81
Quote part : 18/1006

Performances énergétiques

Diagnostic de performance énergétique (DPE) du loft situé à Paris 18, Marché de l’Olive – Marx Dormoy, classé E pour la consommation et C pour les émissions de gaz à effet de serre.

ENVIRONNEMENT & ATMOSPHÈRE

LE QUARTIER DU MARCHÉ DE L’OLIVE – MARX DORMOY

Niché au nord du 18ᵉ arrondissement, le quartier du Marché de l’Olive cultive un charme singulier, entre authenticité populaire et renouveau urbain.
Autour de sa halle métallique inaugurée en 1885, l’une des plus anciennes de Paris, la vie s’organise au rythme des étals, des terrasses et des commerces de proximité.
Chaque matin, les habitants s’y croisent dans une ambiance de village, loin de l’agitation des grands boulevards.
On y trouve de belles adresses gourmandes, des cafés de quartier où le temps s’étire, des ateliers d’artisans et quelques galeries venues s’installer au fil des ans.

Sa proximité avec Montmartre, La Chapelle et la rue Riquet contribue à cette atmosphère contrastée, entre tradition et création contemporaine.
Les rues bordées d’immeubles de faubourg, les façades en briques et les passages arborés rappellent le Paris populaire d’autrefois, aujourd’hui revisité par une nouvelle génération de citadins attachés à l’âme du 18ᵉ.

Sur le plan immobilier, le secteur du Marché de l’Olive attire de plus en plus d’acquéreurs en quête d’espaces atypiques et lumineux.
Les anciens ateliers reconvertis en lofts, les appartements en dernier étage et les immeubles anciens bien tenus y côtoient quelques opérations plus récentes.
L’évolution du quartier, amorcée depuis plusieurs années, s’accompagne d’une hausse mesurée des prix et d’une demande soutenue pour les biens de caractère, notamment autour de la halle et de la rue Eugène Sue.

Un quartier vivant, contrasté, profondément parisien, où se mêlent authenticité, convivialité et créativité.

Pour prolonger la découverte, consultez le guide local du Marché de l’Olive sur Paris ZigZag

Transports

Loisirs et sorties

Commerces

Services publics et éducation

Soyez les premiers au courant de nos nouveautés