VILLAGE URBAIN

vendu

Paris 9 - Notre Dame de Lorette
Loft 2 pièces
surface : 55 m2 pièces : 2 chambre : 1 étage : 6

À vendre – Loft en duplex Paris 9 Notre-Dame-de-Lorette – Rue des Martyrs

Amateur de vue dégagée et de volumes exceptionnels, découvrez ce superbe loft en duplex à vendre à Paris 9, au cœur du quartier Notre-Dame-de-Lorette – Rue des Martyrs. Situé au sixième et dernier étage d’une belle copropriété ancienne parfaitement entretenue, ce bien rare offre plus de 4,10 m au faîtage et un aménagement pensé pour optimiser chaque mètre carré.

L’appartement se compose d’une entrée desservant une cuisine ouverte sur un double séjour lumineux, surplombé par une mezzanine accueillant la chambre, d’une salle de bains et d’un WC indépendant. L’ensemble, rénové avec soin, associe charme de l’ancien et confort contemporain, offrant un espace de vie fonctionnel et chaleureux.

Idéalement situé Rue des Martyrs, à proximité des commerces, cafés et transports, ce loft à vendre à Paris 9 incarne l’art de vivre typiquement parisien, entre authenticité et modernité.

Quality Street Immobilier, spécialiste de l’immobilier de caractère à Paris et en Normandie.

Au cœur du 9ᵉ, rue Ambroise Thomas dans le secteur Faubourg Poissonnière / Conservatoire, cet appartement de caractères avec balcon, offre un fort potentiel de rénovation.

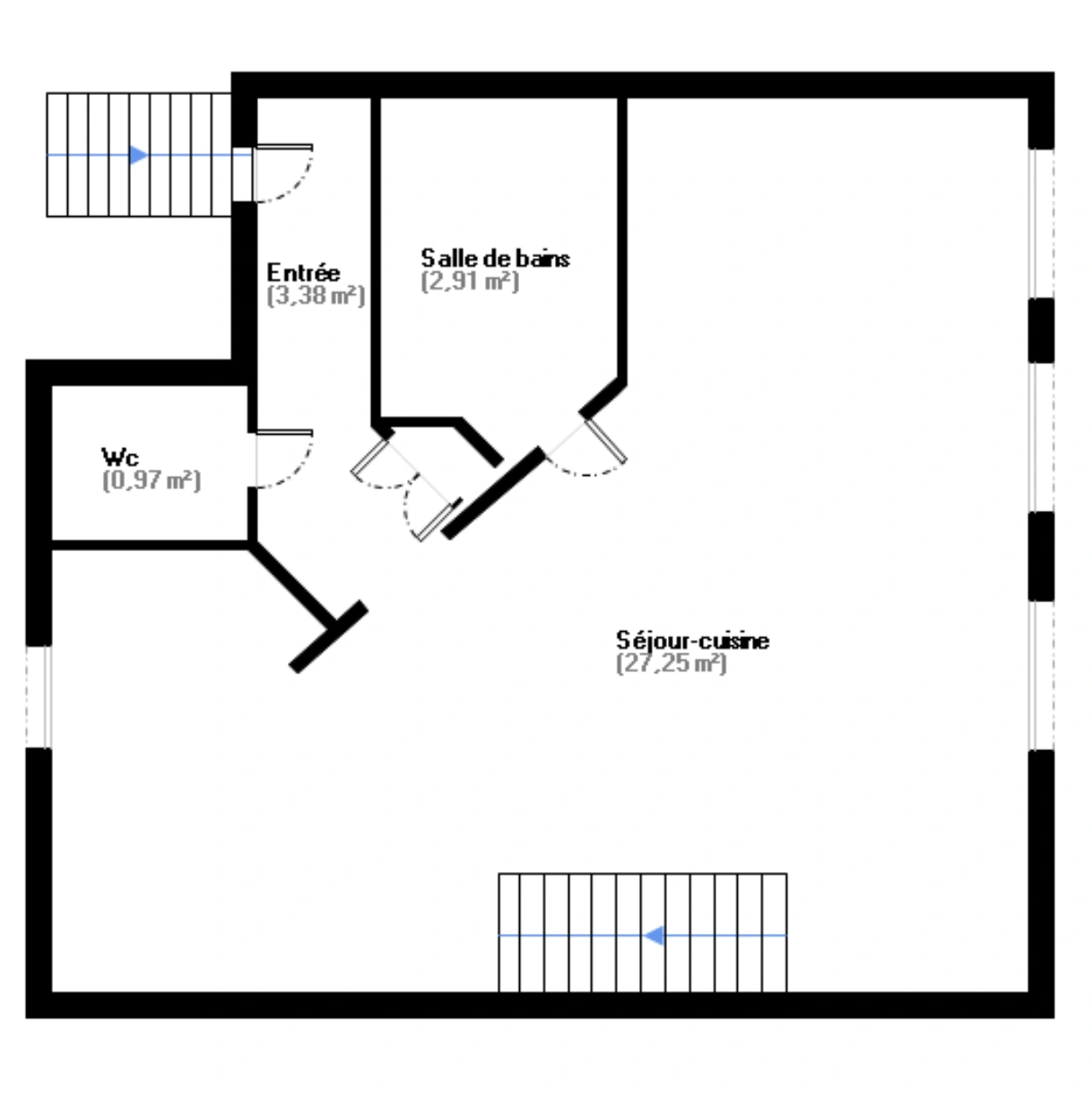
PRÉSENTATION DES PLANS

Récapitulatif par pièces

Niveau Intitulé Surface Exposition Vue
6 Entrée 3.38
6 Séjour / Cuisine 28.51 Sud / Ouest Rue
6 Salle de bains 2.91
6 Mezzanine 17.60 Sud / Ouest Rue
6 wc 1
6 Palier 0.71

Les caractérisitiques du bien

Année de construction : 1900
Nombre de pièces : 2
Nombre de chambres : 1
Surface : 55 m2
Hauteur sous plafond : 4,1
Etage : 6
Nombre de niveaux : 2
Cuisine : Sans
Salle de bain : 1
WC : 1
Type de chauffage : Individuel
Mode de chauffage : Électrique
Mécanisme : Convecteur
Eau chaude : Ballon électrique
Taxe foncière : 597 €

Les caractérisitiques de la copropriété

Année de construction : 1900
Nombre d'étages : 6
Digicode : 1
Interphone : 1
Charges annuelles : 1824 €
Nombre de lots en habitation : 6
Quote part : 100/1061

Performances énergétiques

Diagnostic de performance énergétique du loft à Paris 9 Notre-Dame-de-Lorette – Consommation énergétique 288 kWh/m²/an et émission de gaz à effet de serre 9 kgCO₂/m²/an.

ENVIRONNEMENT & ATMOSPHÈRE

Notre-Dame-de-Lorette – Rue des Martyrs

Le quartier Notre-Dame-de-Lorette – Rue des Martyrs, au cœur du 9ᵉ arrondissement de Paris, séduit par son atmosphère typiquement parisienne. Ici, architecture haussmannienne, petites places animées et commerces indépendants créent un cadre de vie à la fois convivial et dynamique.

La Rue des Martyrs est l’artère emblématique du secteur. Connue pour ses adresses gourmandes, ses cafés historiques, ses épiceries fines et ses galeries d’art, elle relie Montmartre à Notre-Dame-de-Lorette dans une ambiance de village urbain. Les habitants profitent d’une offre culturelle variée, d’écoles réputées et d’un accès facilité aux transports, permettant de rejoindre rapidement tous les quartiers de la capitale.

Vivre à Notre-Dame-de-Lorette, c’est bénéficier d’un emplacement recherché alliant authenticité et modernité, idéal pour un quotidien parisien actif et agréable.

Pour approfondir l’histoire et les bonnes adresses de la rue, consultez ce guide local dédié : Rue des Martyrs – un village authentique entre Pigalle et Montmartre

Transports

Loisirs et sorties

Commerces

Services publics et éducation

Soyez les premiers au courant de nos nouveautés