Situé au cœur d’Oberkampf – Parmentier dans le 11ᵉ arrondissement de Paris, ce loft unique de style industrieloccupe le 2ᵉ étage avec ascenseur d’un bel immeuble réhabilité. Conçu et aménagé par un architecte, il marie subtilement l’authenticité de ses matériaux d’origine et un confort contemporain.
Les amateurs d’espaces hors normes apprécieront ses 3 mètres de hauteur sous plafond, sa lumière Sud-Ouest et ses volumes ouverts. L’entrée avec rangements intégrés dessert un vaste séjour chaleureux prolongé par une cuisine équipée façon atelier. L’espace nuit comprend une chambre principale avec rangements, une seconde chambre en second jouréclairée par une verrière, une salle de bains avec WC ainsi qu’une salle d’eau avec WC séparé.
Cet appartement type loft à Oberkampf – Parmentier Paris 11 est un lieu de vie rare et inspirant, idéal pour les amoureux de design et d’architecture industrielle, à deux pas des commerces, cafés et galeries du quartier.
Quality Street Immobilier, spécialiste de l’immobilier de caractère à Paris et en Normandie.
Toujours dans le 11ᵉ, côté Saint-Ambroise, cet atelier-loft au calme absolu développe un esprit industriel avec briques apparentes et 3 mètres de hauteur sous plafond.
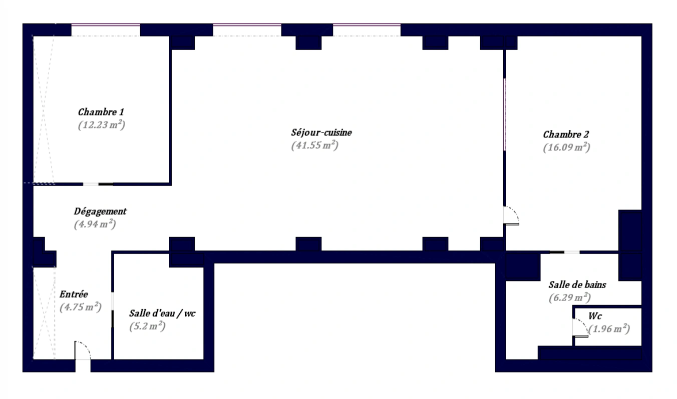
| Niveau | Intitulé | Surface | Exposition | Vue |
|---|---|---|---|---|
| 2 | Entrée | 4.75 | ||
| 2 | Dégagement | 4.95 | ||
| 2 | Chambre 1 | 12.74 | Sud Ouest | |
| 2 | Séjour / Cuisine | 42.59 | Sud Ouest | |
| 2 | Chambre 2 | 16.09 | Sud Ouest | |
| 2 | Salle de bains | 6.29 | ||
| 2 | wc | 1.96 | ||
| 2 | Salle d'eau | 5.2 |
Année de construction : 1930
Nombre de pièces : 3
Nombre de chambres : 2
Surface : 94 m2
Hauteur sous plafond : 3 mètres
Etage : 2
Cuisine : Ouverte aménagée et équipée
Salle de bain : 1
Salle d'eau : 1
WC : 2
Type de chauffage : Individuel
Mode de chauffage : Électrique
Mécanisme : Radiateur
Eau chaude : Ballon électrique
Taxe foncière : 955 €
Année de construction : 1930
Nombre d'étages : 5
Local poussette / vélo : 1
Digicode : 1
Interphone : 1
Charges annuelles : 1700 €
Nombre de lots : 259
Nombre de lots en habitation : 6
Quote part : 34/50000
Le quartier Oberkampf – Parmentier, au cœur du 11ᵉ arrondissement de Paris, est l’un des secteurs les plus recherchés de la capitale pour son ambiance créative et cosmopolite. Ses anciennes usines et ateliers ont été transformés en lofts contemporains, galeries d’art et espaces culturels, tout en conservant l’âme industrielle qui fait son charme.
À deux pas du Canal Saint-Martin et des places animées de la République et de la Bastille, le quartier regorge de cafés branchés, restaurants gastronomiques et boutiques indépendantes. Les rues Oberkampf et Parmentier incarnent cet esprit convivial et artistique, offrant une atmosphère unique où se croisent habitants, créateurs et entrepreneurs.
Bien desservi par plusieurs lignes de métro et de bus, Oberkampf – Parmentier séduit aussi par ses marchés alimentaires, ses épiceries fines et ses espaces verts. Pour découvrir les meilleures adresses et actualités locales, vous pouvez consulter le guide proposé par Paris ZigZag qui référence les lieux incontournables du secteur.